News / Archivio
News | Archivio | Convegno storico
News
L'assessore Mussner illustra la circonvallazione di Longega
Un tassello di rilievo per la realizzazione della nuova strada per la Val Badia" così l'assessore provinciale ai lavori pubblici definisce la circonvallazione dell'abitato di Longega per la quale la Giunta provinciale, su sua proposta, lunedì scorso (12 dicembre) ha approvato le caratteristiche tecniche. I primi lavori dovrevvero essere avviati già nella primavera 2006.

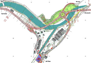
Quale parte integrante del progetto complessivo della nuova strada della Val Badia, la Giunta provinciale ha approvato le caratteristiche tecniche per la circonvallazione di Longega nel comune di San Vigilio di Marebbe. Il nuovo tracciato, con una lunghezza complessiva di 730 metri, avrá quali caratteristiche tre viadotti ed una rotatoria. La rotatoria, con un raggio di 38 metri sarà costruita sulla sponda orograficamente sinistra del rio Gadera. I collegamenti con San Vigilio di Marebbe, l’Alta Badia e la nuova strada per la Val Badia saranno garantiti con la realizzazione di tre ponti di lunghezza compresa fra i 50 ed i 57 metri. Il collegamento per la località Rina continuerà ad essere garantito sul tracciato attuale per risparmiare terreno - così l'assessore Mussner - dal momento che in quest'area è previsto un ampliamento della zona produttiva. Il materiale di scavo proveniente dal cantiere all'altezza della galleria "Punt de Fer" sarà riutilizzato per il livellamento nell'ambito della costruzione della rotatoria. I lavori dovrebbero essere avviati nella primavera 2006.
Per la realizzazione della circonvallazione di Longega era stato predisposto uno studio di fattibilità che aveva prospettato due varianti possibili. Tra queste il Comune di San vigilio di Marebbe ha scelto quella per la quale la Giunta ha fissato le caratteristiche tecniche che tengono presenti anche le indicazioni della ripartizione opere idrauliche e corrisponde alle esigenze della popolazione locale, dell'Associazione turistica e del comune stesso.
l progetto - così l'assessore Mussner - costituisce una tessera fondamentale del mosaico complessivo della realizzazione della strada della Val Badia che non può essere assolutamente mancante per ragioni di sicurezza e di economicità.
SA

